茅野市民館 天井等の改修工事のお知らせ

期間:平成29年11月21日(火)~12月26日(火)

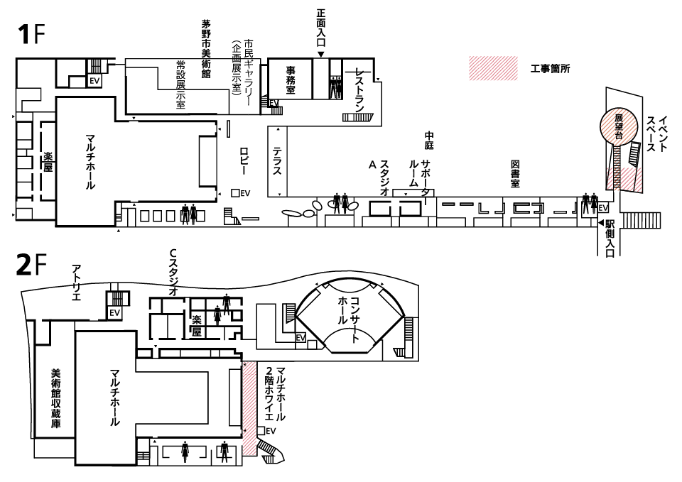
茅野市民館では平成29年11月21日(火)から12月26日(火)にかけて、天井等の改修工事を行ないます。現在、工事箇所の展望台・イベントスペース・マルチホール2階ホワイエ等がご利用いただけなくなっています。ご不便をおかけいたしますが、ご理解とご協力のほど何卒よろしくお願いいたします。


工事箇所:展望台、イベントスペース後方一部、マルチホール2階ホワイエ








お問合わせ
〒391-0002 長野県茅野市塚原一丁目1番1号  Tel:0266-82-8222 Fax:0266-82-8223
Copyright 2015 (C) Community Culture Creation Co.Ltd. All rights reserved